Tay nâng Hafele 372.33.611 là phụ kiện hỗ trợ nâng cánh tủ thuộc dòng cao cấp, được phát triển cho các hệ tủ nội thất hiện đại. Với cơ cấu vận hành chính xác cùng hệ thống giảm chấn tích hợp, sản phẩm giúp cánh tủ đóng mở nhẹ nhàng, ổn định, hạn chế va đập và giảm thiểu tiếng ồn trong quá trình sử dụng.
Đặc điểm nổi bật
- Thiết kế nhỏ gọn, tính thẩm mỹ cao: Phù hợp cho cánh tủ liền tấm bằng gỗ, kính hoặc khung nhôm, dễ dàng đồng bộ với nhiều phong cách nội thất khác nhau.
- Chuyển động êm ái, an toàn: Hỗ trợ cánh tủ mở lên mượt mà và giữ vững tại nhiều vị trí mở, cho phép thao tác rảnh tay và nâng cao độ an toàn khi sử dụng.
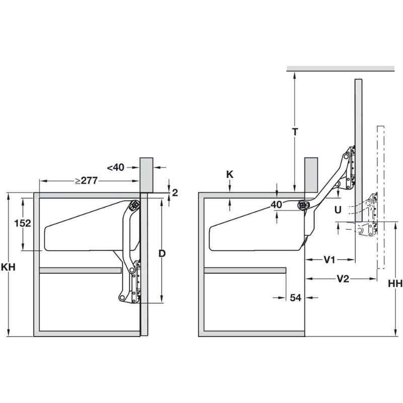
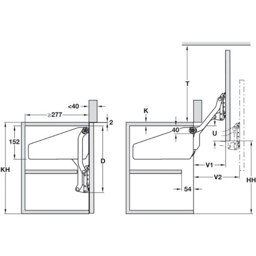
- Thi công nhanh, căn chỉnh chính xác: Trang bị vít Euro, chốt cố định và cơ cấu gắn nhanh cho cánh cùng thanh ngang; cam chỉnh lệch tâm giúp việc lắp đặt và căn chỉnh trở nên đơn giản, tiết kiệm thời gian.
- Khả năng điều chỉnh linh hoạt: Cho phép tinh chỉnh chiều cao, độ lệch cạnh và góc nghiêng với độ chính xác cao, đáp ứng yêu cầu kỹ thuật của nhiều cấu hình tủ khác nhau.
- Ứng dụng đa dạng: Phù hợp cho tủ bếp, tủ treo phòng khách, tủ trang trí hoặc tủ trưng bày trong các không gian nội thất cao cấp.
- Độ bền và hoàn thiện vượt trội: Kết cấu từ nhựa kỹ thuật kết hợp thép chịu lực, bề mặt mạ niken cao cấp giúp chống mài mòn, duy trì vẻ ngoài sang trọng và độ bền lâu dài.























Đánh giá
Chưa có đánh giá nào.