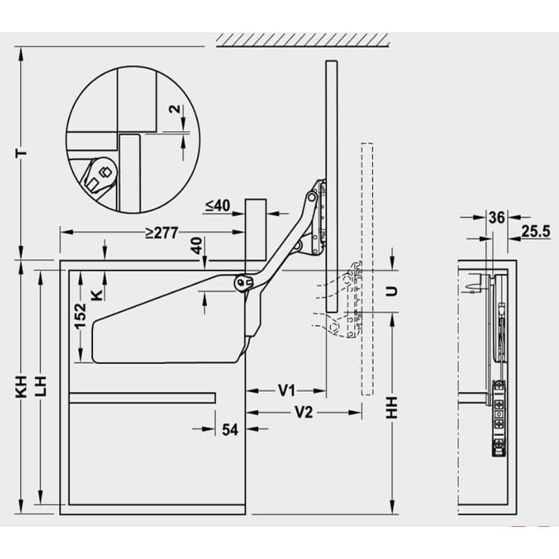
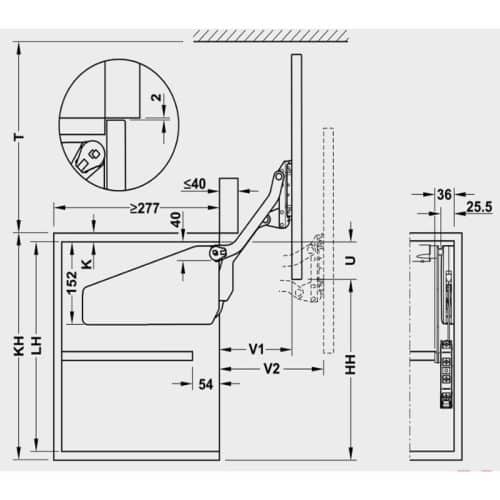
Thông số kỹ thuật
- Chiều cao của tủ: 430 – 600mm
- Trọng lượng cánh tủ: 7.4 – 14.6kg
- Model: R4us
- Màu nắp che: màu xám
- Dành cho cửa tủ 1 cánh được làm bằng gỗ, kính hoặc có khung nhôm
- Chất liệu: phụ kiện lắp đặt: nhựa, thép, nắp chụp: Nhựa
Tính năng nổi bật
- Màu/Lớp phủ hoàn thiện: Phụ kiện lắp đặt: Mạ nikel,
- Trọn bộ gồm: 1 bộ phụ kiện tay nâng Free Up (có kèm bas trước, hướng dẫn lắp đặt và mẫu khoan trên giấy, 1 cặp nắp chụp và 1 thanh vắt ngang 1.074mm.

























Đánh giá
Chưa có đánh giá nào.